г. Москва, Дорожная, д. 46к2
Продажа арендного бизнеса Ք 74 000 000 за объект - Стрит-ритейл
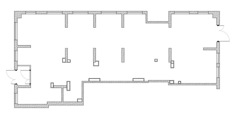
Стрит-ритейл
ЖК Ютаново – 1983 квартиры
1 этаж
Площадь: 222,4 м2
Высота потолка: 3,4 м
Арендатор: Дикси ДДА на 10 лет.
Мощность: 45 кВт
Витринные окна
Паркинг
1-я линия домов
Возможность размещения наружной рекламы
Продажа: 74 000 00 руб.,
МАП: 5 % от ТО, но не менее 556 000 руб .
ГАП: 6 672 000 руб
Окупаемость: 11 года
Коммерческие условия подлежат обсуждению






