г. Москва, Калужская пл., д. 1, корп. 1
Продажа Ք 15 200 000 - Стрит-ритейл
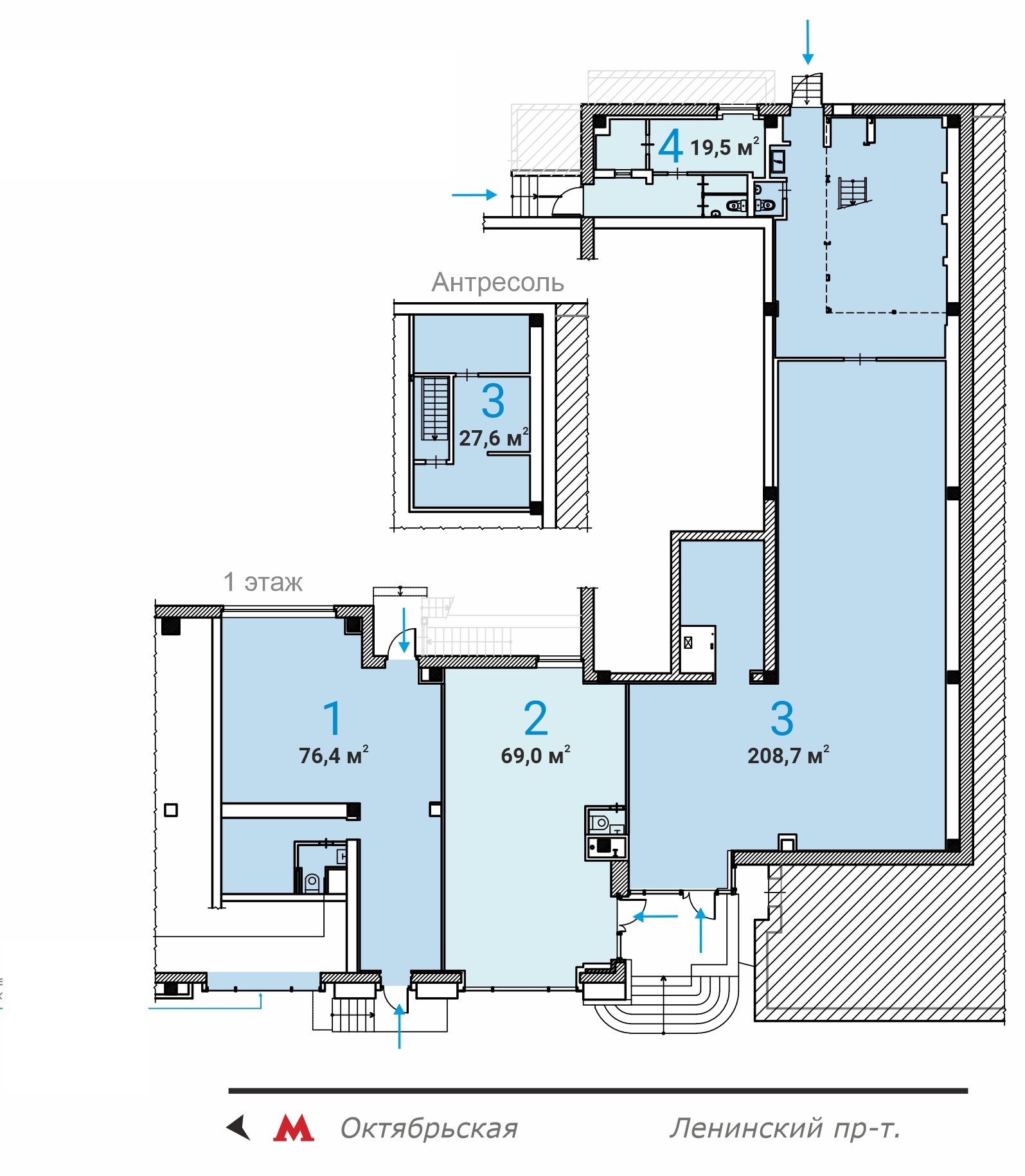
Стрит-ритейл
1 этаж
Площадь:
Блок 1 – 76,4 м2
Блок 2 – 69 м2
Блок 3 – 236,3 м2
Блок 4 – 19,5 м2
Мощность: по запросу
Высота потолка: 4,4 м
Отдельный вход
Витринные окна
Паркинг: стихийный
1-я линия домов
Возможность размещения наружной рекламы
Продажа:
Блок 1 – 112 200 000 руб.,
Блок 2 – 105 600 000 руб.
Блок 3 – 223 800 000 руб.
Блок 4 – 15 200 000 руб.
Коммерческие условия подлежат обсуждению


